Pensarás que es imposible vivir en una micro casa de 18 m2 hasta que mires dentro de esta
Inspirado en sus años de adolescencia viviendo en grandes países como China o la India, Chris Heininge desarrolló un gran interés en la filosofía de “menos es más”. En la cultura japonesa, sobre todo, han tenido que adaptarse por fuerza a un mundo que se les queda pequeño en cuanto a espacio se refiere, donde el aprovechamiento de cada rincón se hace indispensable para evitar todo lo posible el gran problema de hacinamiento que asola sus ciudades.
Chris comenzó a construir su primer hogar en una casa de reducidas dimensiones en Aurora, Oregon, durante el año 1999. El pequeño tamaño de la vivienda permite que su coste también sea menor, al igual que su mantenimiento.
A día de hoy, su familia ha construido más de 100 viviendas en Oregon, Washington y Arizona.
Veamos el interior de una de estas diminutas pero completas casas:
Cada rincón de la casa está aprovechado al máximo, nada queda a la improvisación.
La cocina comparte espacio con el comedor y el salón. Dispone de todas las comodidades de la vida moderna.
El cuarto de baño dispone de multitud de espacios de organización, llenando casi cada pared de la estancia.
En la zona superior, nos encontramos con el dormitorio de cama doble y sus correspondientes muebles de almacenaje.
Esta casa de poco más de 18 metros cuadrados puede ser tuya por el módico precio de 70.000 dólares.
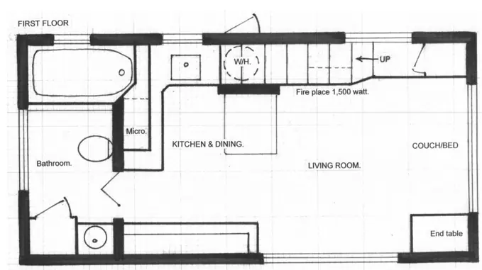
Si quieres ver los planos completos mira las siguientes dos imágenes.

Inspirado en sus años de adolescencia viviendo en grandes países como China o la India, Chris Heininge desarrolló un gran interés en la filosofía de “menos es más”. En la cultura japonesa, sobre todo, han tenido que adaptarse por fuerza a un mundo que se les queda pequeño en cuanto a espacio se refiere, donde el aprovechamiento de cada rincón se hace indispensable para evitar todo lo posible el gran problema de hacinamiento que asola sus ciudades.
Chris comenzó a construir su primer hogar en una casa de reducidas dimensiones en Aurora, Oregon, durante el año 1999. El pequeño tamaño de la vivienda permite que su coste también sea menor, al igual que su mantenimiento.
A día de hoy, su familia ha construido más de 100 viviendas en Oregon, Washington y Arizona.
Veamos el interior de una de estas diminutas pero completas casas:
Cada rincón de la casa está aprovechado al máximo, nada queda a la improvisación.
La cocina comparte espacio con el comedor y el salón. Dispone de todas las comodidades de la vida moderna.
El cuarto de baño dispone de multitud de espacios de organización, llenando casi cada pared de la estancia.
En la zona superior, nos encontramos con el dormitorio de cama doble y sus correspondientes muebles de almacenaje.
Esta casa de poco más de 18 metros cuadrados puede ser tuya por el módico precio de 70.000 dólares.
Si quieres ver los planos completos mira las siguientes dos imágenes.
